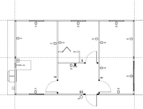
20′ x 32′ Office Trailer for Sale in California
Available now for fast delivery and installation. This 20′ x 32′ doublewide modular office trailer offers approximately 640 square feet of professional workspace, ideal for private schools, churches, contractors, and commercial businesses across California.
Key Features:
- 3 private offices
- Central open work area (admin or bullpen use)
- Dedicated supply/storage room
- Approx. 640 SF total space
- Carpet tile flooring throughout
- Suspended acoustical ceiling (~8’6″)
- Multiple dual-glazed windows for natural light
- Commercial-grade doors with ADA-compliant hardware
Construction & Specs:
- Wood-framed construction (2×4 studs)
- Durable T-111 exterior siding
- Standing seam metal roof system
- Insulated for year-round use
- Commercial modular building (relocatable)
Electrical & HVAC:
- 100 AMP electrical panel (120/240V)
- Interior lighting and outlets installed
- 3-ton wall-mounted HVAC system
- Exterior light included
Ideal Uses:
- Portable office trailer for job sites
- School or church administrative office
- Temporary office space during renovations
- Construction, logistics, or industrial operations
Delivery, installation, and ADA-compliant ramps are available throughout California.
Call Matt Banes in Huntington Beach now or submit an inquiry for pricing, availability, and delivery timelines. Dial (714) 442-2757 extension 502.
