
Great Modular Building Choice in Austin
“Our daycare program was growing so fast that we needed to add space to keep up with enrollment so we decided to try a modular building. We used iModularbuildings.com to help us find local suppliers and we ended up renting a 36’ x 60’ modular classroom long term. We are very happy with the design, how the modular operates and where we were able to locate it on our property here in the suburbs of Austin, Texas.” Karen P., Fresno, California
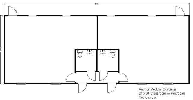
This is always good to hear Karen and we appreciate the feedback. We have helped thousands of public and private schools solve space problems and save money renting modular classrooms. 24′ x 60′, 36′ x 60′ and 48’ x 60’ modular classrooms are very popular sizes for daycare programs. It seems as if these sizes are perfect for growing programs – you can divide them into multiple areas and have space for bathrooms, kitchen areas and plenty of furnishings.
If you are searching for a modular daycare center try using the iModularbuildings.com Free Price Quote & Buyer Assistance Form or you can call me (Matt Banes) direct for nationwide assistance at (714) 442-2757 extension 108.
This post was approved by the Senior Editor of www.imodular.com, a GBM Marketing, Inc. web property.
